Inspiration
Our inspiration stemmed from the fundamental role washing machines play in our daily lives. We aimed to unveil the intricate engineering behind this household appliance and showcase its technical intricacies through meticulous design and operational understanding.
What it does
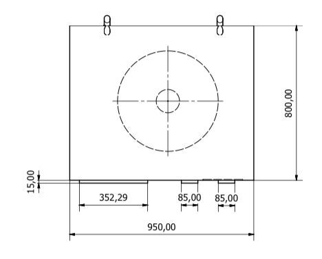
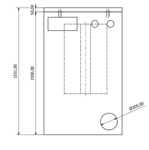
"WashWhiz" offers an in-depth exploration of washing machine mechanics, operational workflow, and technical blueprinting. It reveals the step-by-step process of how these machines function, emphasizing precision engineering and design considerations.
How we built it
We began by conducting extensive research on washing machine operations, studying various models, and delving into AutoCAD for technical drawings. Our team collaborated, leveraging AutoCAD commands, dimension assumptions, and scale selections to create detailed technical drawings. We also meticulously documented the functionalities and operations of the washing machine.
Challenges we ran into
One of the significant challenges was accurately representing the complexity of the machine's inner workings in technical drawings. Additionally, coordinating the team's efforts to synthesize the technical information with design precision was another hurdle.
Accomplishments that we're proud of
We're immensely proud of the comprehensive breakdown of the washing machine's operational stages, coupled with the detailed technical drawings that encapsulate its engineering finesse. Our collaboration in merging engineering understanding with design expertise resulted in a holistic portrayal of the machine's functionality.
What we learned
Through this project, we gained a profound appreciation for the meticulous engineering that powers seemingly ordinary household appliances. We enhanced our skills in AutoCAD, improved teamwork and communication, and deepened our understanding of precision engineering.
What's next for "WashWhiz: Technical Prowess in Machine Design"
In the future, we aim to expand this project by exploring more advanced washing machine models, incorporating 3D modeling for a more immersive understanding, and possibly extending this study to other household appliances, unraveling their engineering intricacies.
Built With
- autocad

Log in or sign up for Devpost to join the conversation.