Inspiration
We want to protect our enviroment, especially trees from light sources as much as possible. Problem with aritifical lights is that they force tree to hold their leaves for week more and then they are vulnerable to freezing.
What it does
Movement sensor ensure that white light is used only when necessery. Communication between lights provide turning on not only closest ligt but also other close ligts to provide comfort. With light sensor we can turn on lights only if it is really necessery instead of turning on lights on set time. With weather forecast and data about sunset and sunrise we can calculate for how long we will shine during night and thanks to data analysis we can calculate estimated consumption, so we can alert powerhouse if case of big consumption.
How we built it
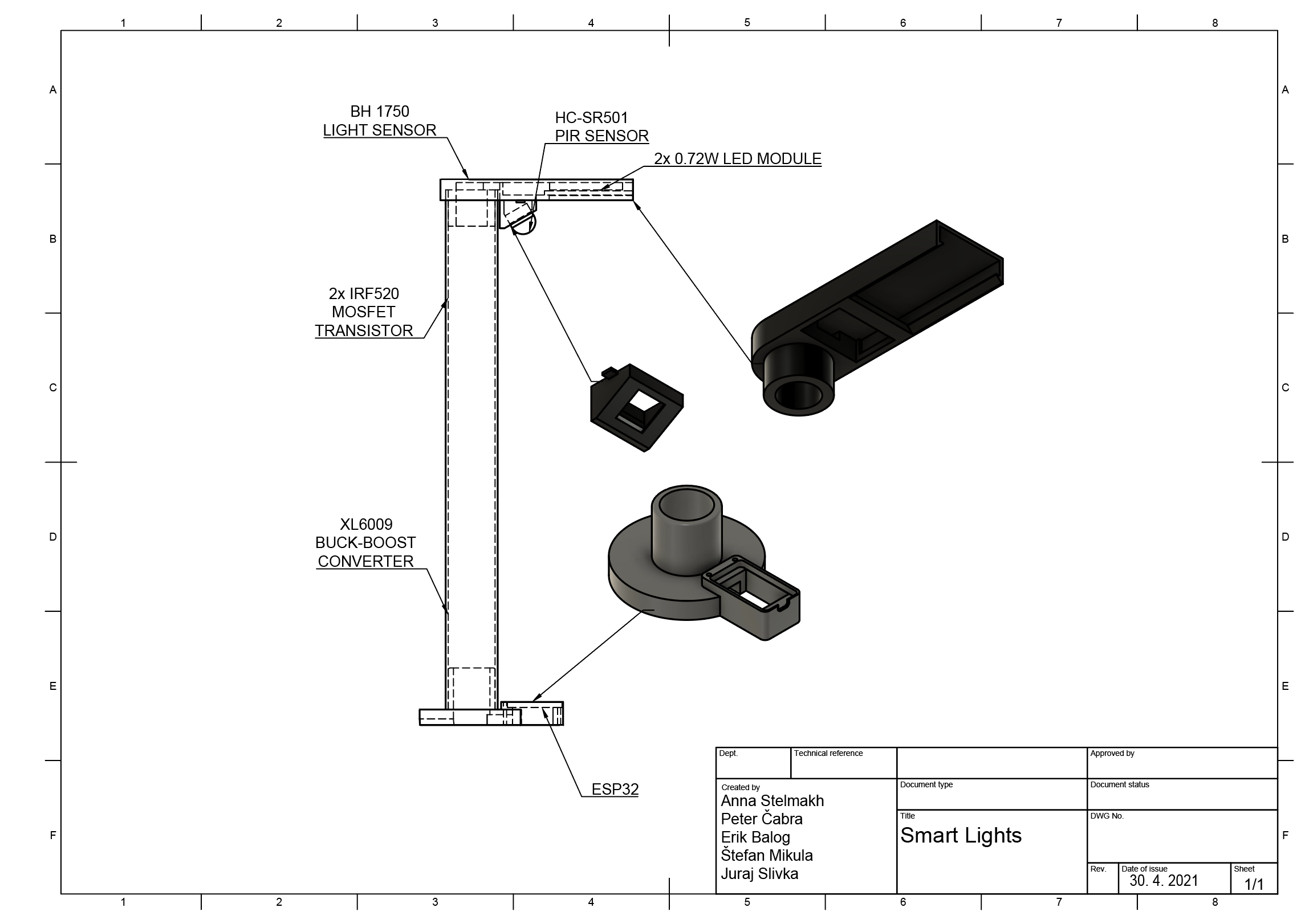
ESP32, 3d printer, light sensor, IR sensor, mosfets, leds
Challenges we ran into
Whole project was challenge until we figured it out.

Log in or sign up for Devpost to join the conversation.