The Inspiration
We are all fans of the TV show "The Office" which revolves around a company that sells paper. Our team decided to modify the workspace in The Office to make it more energy efficient and environmentally friendly.
The Idea
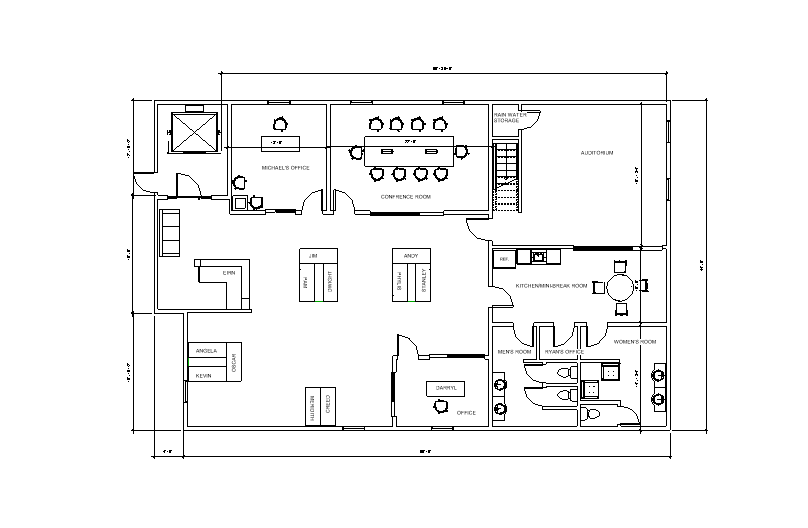
There are 8 total changes that we have proposed that would make any office more sustainable for the long term such as Green roof, Aerogel insulation, Atrium design, Sensor LED lighting, Rainwater harvesting system, Solar Panels, Cork Flooring, and more efficient waste management system. https://docs.google.com/document/d/1ZfDeLp6xpj-2nMPJsymDCuO0leVKWy9-rLAOgJbD0GM/edit?usp=sharing
How We Built It
We used Revit as the main software to present our re-designed workspace's floor plan. Our team was able to redesign a basic layout of the office while adding small but effective changes that would make help to conserve energy.
The Challenges We Faced
When trying to figure out energy efficient design for our workspace it was challenging for us to find something that was both energy and cost-efficient.
What We Accomplished
Our team is most proud of the fact that we were able to come together and create a project that we are passionate about. We are also proud of the floor plan that we made to show the ideal changes that could be implemented into a workspace. We have enjoyed being able to work together to come up with a realistic solution that can be implemented in all companies.
What We Learned
Our group was able to learn problem-solving skills, in how we should approach and tackle the project, communication skills, in how each team member had to effectively describe our roles in the project as well as discuss with each other different aspects.
The Future of ReGreen
Hopefully, designers will consider looking into some of the design enhancements for workspaces we proposed so they use more energy efficient and cost-effective designs.

Log in or sign up for Devpost to join the conversation.