Inspiration
Elevators, often overlooked in our daily lives, have a fascinating history that dates back to the 3rd century BC. Originally designed for defensive purposes in castles and forts, elevators evolved into essential tools for transportation. The turning point came in 1854 when Elisha Graves Otis invented the first elevator with a safety brake, revolutionizing the way we use elevators. Our project, dives into the rich history, technological evolution and the technical details of elevators. From human and animal-powered mechanisms to the introduction of electricity in the 1880s, we explore how elevators became integral to our lives, especially in high-rise buildings.
What it does
Elevators are classified based on their propulsion systems, with electric and hydraulic systems being the two main categories. Electric elevators, widely used in tall buildings, utilize an electric motor and rope systems for efficient and versatile operation. On the other hand, hydraulic elevators are preferred for low-rise buildings, utilizing a hydraulic cylinder or piston system for energy efficiency and cost-effectiveness. Elevators serve various purposes, and we categorize them into five classes: from those designed for human transportation to specialized ones for carrying goods, patients, or operating as service elevators in busy, high-rise structures.
How we built it
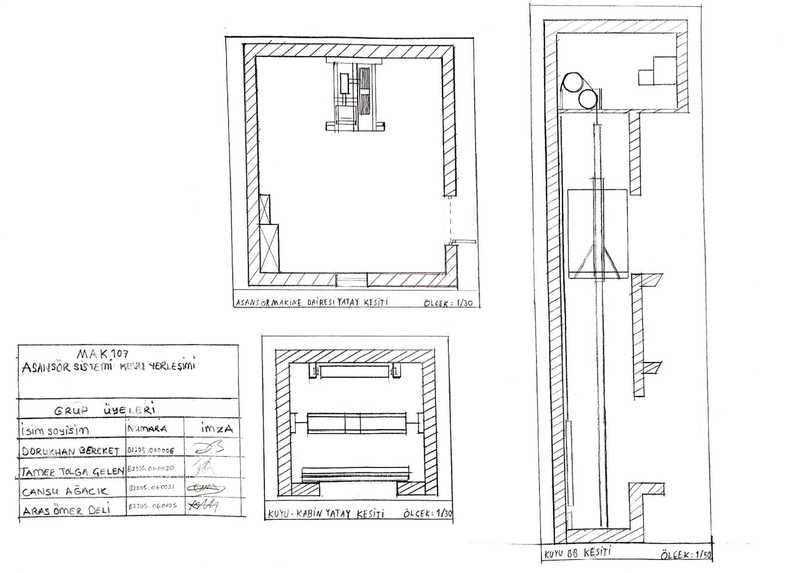
We emphasize the importance of regulatory standards, highlighting the European Union Conformity Standards and local regulations governing the safety, design, and market supervision of elevators. The project was prepared by making the necessary scale calculations in accordance with current regulatory standards.
Challenges we ran into
Although there were moments when we had difficulties in the literature review process, it was a bit challenging to collect the necessary information since the number of sources containing comprehensive information on the subject was limited.
Accomplishments that we're proud of
As a result, we are very pleased to have prepared a realistic and succesful drawing that complies with modern technical drawing rules and elevator standards.
What we learned
During the preparation process of this project, we learned a lot of information about the elevator working mechanism, parts and technical drawing rules, as well as learning to work as a team and solidarity.
What's next for Rise with Design: Elevator System
While the current report covers historical and technical aspects, the final report will delve into specific parts of the elevator system and their functionalities. Join us on this journey as we unravel the complexities and intricacies of elevator technology. Elevators are not just a means of vertical transport; they are a testament to human innovation and engineering excellence.
Built With
- autocad

Log in or sign up for Devpost to join the conversation.