Inspiration
I am interested in digital twins, which are virtual replicas of real things used for simulations. I am also curious about tiny houses, and have personally considered living in one. So for some time, building a digital twin of a tiny house has been in the back of my mind.
Since Meta started looking for remixable worlds, it occurred to me this would be a perfect opportunity to develop my tiny house simulation and share it with others. In fact, this project only makes sense if it is open-source and remixable.
I love the idea of having real houses in Horizon Worlds, and the potential for life to imitate art in mixed reality. Part of me also hopes to raise awareness about tiny houses to help combat the hopelessness of the current housing crisis.
What it does
My tiny house simulator lets people explore and understand the true physical dimensions of tiny houses, which of course is the great mystery everybody wonders about. There is no better way to judge these spaces than the immersive magic of VR. So if somebody is curious or on the fence about tiny houses, this could help them decide.
Or, for those who already own Casitas, my simulation can help inform their decisions about additional improvements, design concepts, color schemes, furniture arrangements, even landscaping ideas. It might even be more useful for existing owners than prospective buyers.
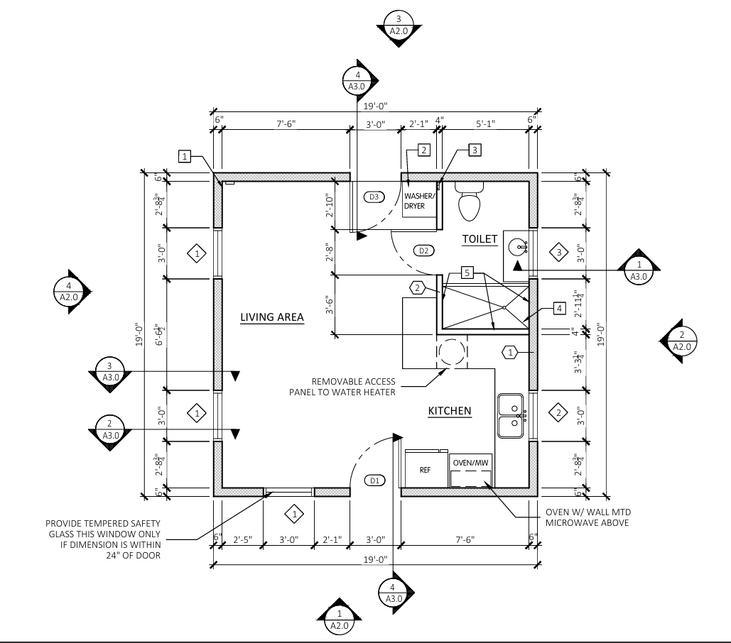
How we built it
Using real blueprints, I created a very precise 3D model of the base house and 5 roof variations. Then I separated the mesh into individual pieces, and painstakingly unwrapped their UVs. After bringing it all into Horizon, I generated some scripts to govern the lights and doors. To test it, I made a few Casitas myself, which was surprisingly fun.
Challenges we ran into
Using the Worlds Desktop Editor is a frustrating experience. Half of the problems I struggled to solve felt like they should not even exist. The AI went rogue on me a few times and broke things which I did not even ask it to touch, wasting hours and driving me nuts. Now half of my prompts are devoted to explicitly telling the AI not to exceed the scope of its prompt.
Accomplishments that we're proud of
The trick to making this work is individually unwrapping the UVs of each surface in a way that accommodates AI generated textures. Currently the Meta tools are not able to generate AI textures for meshes like this, so my work-around makes it possible for people to do something they have not been able to do. Users will be surprised how modular and flexible the Casita is. Since I made it for myself, I did a very good job
What we learned
The Horizon Worlds AI terrain generator is very impressive. It can scatter buildings which are not AI generated, but made by artists from modular pieces. Studying these buildings helped me topologize my geometry better to reduce seams. I was also able to conceive of my UV unwrapping technique by examining the textures of these structures.
What's next?
Hopefully people will use this virtual world to plan their real futures, improve their lives and fulfill their dreams of home ownership in places they love.
I plan to produce more tiny house virtual twins. I believe VR has a lot of potential to accomplish real good and change lives, and I feel this may be one way for me to make a meaningful contribution.
If I win this contest, I will literally buy and live in a Casita customized using Horizon Worlds.




Log in or sign up for Devpost to join the conversation.