Breaking Down Barriers: Solutions for Neurodivergent Students in Study Rooms
Ryan Kerstetter, Adam Garsha, Krish Vora, Will Borchers February 18, 2023
Introduction
Based on a study in 2022, 15-20% of the world’s population is neurodivergent (“Neurodiversity”). Despite making up such a large section of the population, there are few spaces made to accommodate their study needs. We have designed a study space to accommodate their needs, which will serve the neurotypical population as well.
Variety Variety Variety!
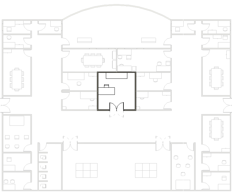
Creating a space that accommodates individuals with Autism and ADHD requires a multi-pronged approach. Our team has designed a study complex that incorporates colors, tactile, auditory, and other critical elements to ensure a space designed for neurodivergence. We have a variety of rooms to offer to accommodate whatever the students need for the day. Whether they need to finish some last minute homework, or they want to relax in the garden, there is a location for whatever is needed. The blue rooms are our individual study rooms where students have a chair, desk, whiteboard, and shelves to get their work done. These individual study rooms are enclosed, and meant to be tight in order to not only help focus, but also help students who may feel safer in a tighter space (“Sensory Issues: Seeking and Avoiding”). The green rooms are our group study rooms; in case the students need to work together in a group on a project they can hop in a study room and get their work done. They come complete with conference tables for more general meetings or drafting tables for more hands-on activities. They also include a variety of plants to give a natural feel. The garden is an outdoor retreat where students can escape the hassle, and stress of study. The garden comes complete with a wide variety of nature from flowers, to trees, and ponds. There is also the activity room which contains ping pong tables, foosball, air hockey, and more to help the students release their tension from hours of hard work.
Furthermore, each person with Autism or ADHD has different needs (Montoya). Therefore, our solution accommodates different learning styles and avoids a one-size-fits-all approach in accordance with Christian’s input. After all, it’s built different™.
Appropriate Sensory Input
Visual Stimulation
The choice of color has particular importance when designing spaces for neurodivergent people. For example, many people with Autism have an affinity for brown and dislike the color yellow. A study from Grandgeorge and Masataka in 2016 found that children (4-17) with autism significantly prefer brown, and green compared with neurotypical children, and significantly dislike the color yellow. Due to the results of this study we have decided to not include yellow in the building. Yellow is also avoided due to being one of the colors most associated with colorblindness (“Types of Colorblindness”).
Auditory Stimulation
Many neurodivergent individuals prefer a low-sound environment. Our design uses soundproofing, and white noise to prevent distractions from interfering with learning. To help soundproof the walls we added acoustic wall paneling. To help soundproof the windows, we have added soundproof foam along the edges. We have also added soundproof doors to further soundproof the room (“How to Soundproof A Room”). In addition to making the rooms distraction free from outside noises, we have also included the option to rent out headphones, as listening to music has been linked as being therapeutic for people with autism (Quintin).
Confronting Ambiguity
Spatial Design
Room layouts differ based on the different needs of neurodivergent individuals. Each room has a specific purpose. While some rooms use cotton furniture and are designed with minimal distractions to benefit Autistic people (Schorr), other rooms have more stimulating furniture to appeal to fidgeting commonly associated with ADHD (Huang and Tai).
Interactivity
Like a playground
Many neurodivergent individuals require a level of interactivity to fully utilize a space (Joosten et al.) To help students make full use of the space, we have a room dedicated to renting out objects which can help with their stimulation. These include headphones to help with their auditory sensations, or fidget toys to help with any anxiety and tactile stimulation.
Curb-cut Effect
The curb-cut effect is an often-cited benefit to eliminating disadvantages for differently-abled people. This idea is crucial to the improvement of public spaces: “The curb-cut effect underscores the foundational belief that… we rise or fall together” (Blackwell). Our design not only promotes an effective study space for those with Autism or ADHD; it also provides the variety necessary to ensure effective studying for all people. For example, our individual study rooms are meant to help people who are neurodivergent primarily, and also provide very effective study rooms for neurotypicals as well, who could benefit from the extra silence. We also have places like the activity room, and garden where anyone can decompress, and relax after a hard day of work.
Conclusion
As we begin to understand, and learn more about neurodivergent people it becomes clear that there is a lack of resources available to that section of the population which needs them the most. It is imperative we implement these plans to give an equal chance to everyone.
References
Blackwell, Angela Glover. The Curb-Cut Effect. Stanford Social Innovation Review, 2016, https://doi.org10.48558/YVMS-CC96. Grandgeorge, Marine, and Nobuo Masataka. “Atypical Color Preference in Children with Autism Spectrum Disorder.” Frontiers in psychology vol. 7 1976. 23 Dec. 2016, doi:10.3389/fpsyg.2016.01976 “How to Soundproof A Room.” The Home Depot, https://www.homedepot.com/c/ah/how-to-soundproof-a-room/9ba683603be9fa5395fab9089dadf23. Huang, Kuo-Chen, and Nan-Ching Tai. "Development of an ADHD chair to promote safe fidgeting while monitoring symptoms." 2021 IEEE International Conference on Consumer Electronics-Taiwan (ICCE-TW). IEEE, 2021. Joosten, Annette V., Anita C. Bundy, and Stewart L. Einfeld. "Intrinsic and extrinsic motivation for stereotypic and repetitive behavior." Journal of Autism and Developmental Disorders 39 (2009): 521-531. “Library Involvement in an Autism Support Program: A Case Study.” Taylor & Francis, https://www.tandfonline.com/doi/full/10.1080/10691316.2019.1668896. Montoya, Morgan. "ADHD Study Utopia." (2020). “Neurodiversity.” National Cancer Institute, https://dceg.cancer.gov/about/diversity-inclusion/inclusivity-minute/2022/neurodiversity. Quintin, Eve-Marie. “Music-Evoked Reward and Emotion: Relative Strengths and Response to Intervention of People with ASD.” Frontiers, Frontiers, 16 July 2019, https://www.frontiersin.org/articles/10.3389/fncir.2019.00049/full. “Sensory Issues: Seeking and Avoiding.” Kennedy Krieger Institute, 7 Apr. 2007, https://www.kennedykrieger.org/stories/interactive-autism-network-ian/sensory_issues. Schorr, Ben. “The Best Clothing Brands for Children with Autism.” Hidden Talents ABA, 27 Aug. 2020,https://hiddentalentsaba.com/autism-clothing/#:~:text=Brushed%20and%20combed%20cotton%20is,as%20well%20as%20natural%20fabrics. “Types of Color Blindness.” National Eye Institute, U.S. Department of Health and Human Services, https://www.nei.nih.gov/learn-about-eye-health/eye-conditions-and-diseases/color-blindness/types-color-blindness#:~:text=There%20are%202%20types%20of,makes%20colors%20look%20less%20bright.
Built With
- autodesk-revit
Log in or sign up for Devpost to join the conversation.